Ylläpito
Isännöitsijä
Hämeen KiinteistöManageri Oy
Kaskitie 9,
17200 Vääksy
040 820 6282
Henkilöisännöitsijät ovat:
Suoma Jokinen, ITS, suoma.jokinen@hkmoy.fi
Isännöitsijän tavoittaa puhelimella (040 820 6282) arkisin (ma-pe) klo 9-16. Sähköpostit luetaan arkisin päivittäin ja vastataan 24h sisällä. Asiakaspalvelu toimipisteellä etukäteen sovittuina aikoina.
Talonmies
Ismo Engström
044 551 1077
talonmies(at)ritamukkula.fi
Siivous
Trinomi
Perustiedot
Korjaushistoria
1998-1999 Ritaniemenkatu 6-8 katteiden uusiminen
1998 Jätekatosten rakentaminen
2000-2001 Julkisivuremontti
2002 Ritaniemenkatu 2 katteen uusiminen
2003 Kaapeli-tv
2005 Saunojen remontointi
2005 Ikkunoiden ja parvekeovien uusiminen
2006-2007 Lämmitysjärjestelmän perussäätö ja lämmönsiirtimien uusiminen
2006-2007 Ilmanvaihdon perussäätö
2006 Kuivaushuoneiden kunnostus
2009 Puu-ulko-ovien uusiminen, käytävien ja pyörähuoneiden lattioiden maalaus
2009 Lämpökanaalien uusiminen talojen 2-4 ja 6-8 välille
2010 Autolämmityspistorasioiden uusiminen sekä pelastusteiden kunnostus
2012-2014. Putkiremontti,
uusi lämmöntalteenottojärjestelmä,
saunatilojen uusinta,
käytävätilojen remontointi,
ääni/kamerajärjestelmä summereihin,
uudet sähkövedot ja sähkökeskukset,
valokaapelivedot asuntoihin. 2020 Hissiremontti ja porrashuoneovet
Yhtiö
4 taloa ja 8 porrasta, tallentava kameravalvonta
Asuinhuoneistoja 176 kpl, joista yhtiö omistaa yhden
Kerrospinta-ala 9680m2
Oma tontti, 34143m2
Kaapeli-tv
Rekisteröity 28.8.1970
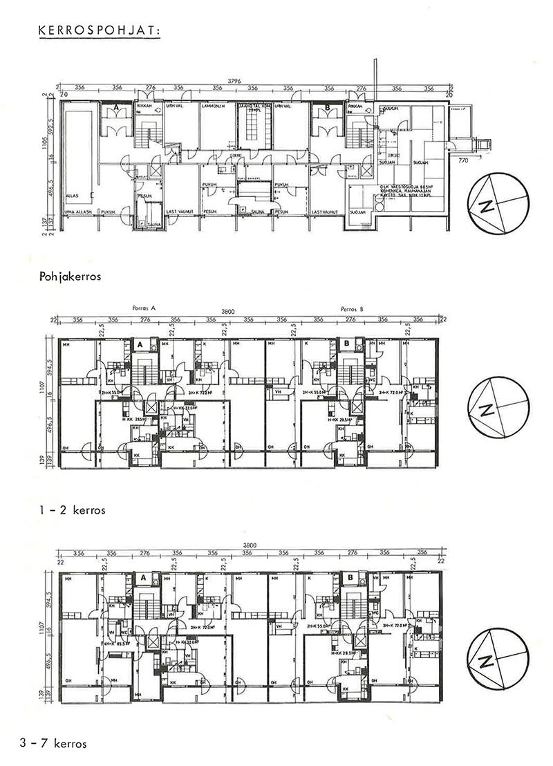
Tilat
8 saunaa, joista 2 uima-altaalla
Kuntosali
Puutyöhuone
Askarteluhuone/kerhohone
Hallituksen kokoushuone
2 pesutupaa ja kuivaushuonetta
Kylmäkellaritilaa ja pyörävarastotilaa
Väestönsuojat, jotka varastokäytössä rauhan aikana
Kulutukset (2010)
vesi 157 l/hlö/vrk
lämpö 2130 MWh
sähkö 205 MWh


